Account
Preferiti
Annunci > Categorie
Annunci > Località
Blog
Contattaci
Account
Preferiti
MENU
×
Home
Annunci
Home
Bergamo
Appartamenti in Vendita a Terno D'Isola
Appartamenti in Vendita a Terno D'Isola
3 foto
3
m²
:
106
Classe Energetica
:
F
Descrizione
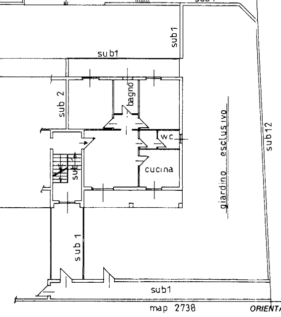
APPARTAMENTO ALL'ASTA IN VIA CARVISI, TERNO D'ISOLA (BG) Si propone il diritto di piena proprietà su immobile ad uso residenziale sito in via Carvisi, nel comune di Terno d'Isola (BG). Nello specifico si tratta di un appartamento al piano terra, composto da: - soggiorno - due camere - disimpegno - cucina - bagno - w.c. - area pertinenziale. ACCESSORI - 2 box doppi. L'unità risulta avere una superficie di circa 106MQ. DATI CATASTALI L'unità immobiliare risulta identificata al catasto fabbricati come segue: Fg. 3 Particella 519 Sub. 3, Via Carvisi s.n., piano T, categoria A/2, classe 1, consistenza vani 5, rendita € 413,17. CHI SIAMO Immobiliallasta.it aiuta le persone a comprare casa all’asta e migliorare la qualità della loro vita senza correre rischi, grazie ad una piattaforma specializzata in aste immobiliari sviluppata intorno alle vere esigenze di chi cerca casa all’asta e ad un team di 30 professionisti esperti dedicato, che ti guida passo passo in un acquisto sicuro e certificato da una tripla garanzia sull’immobile e sul servizio. A differenza delle agenzie troverai: + Varietà: gestiamo migliaia di immobili ogni mese + Tranquillità: tripla garanzia che ti tutela da ogni rischio sull’acquisto Alcuni risultati oggettivi nell’ultimo anno e mezzo: - 8.600 immobili gestiti - +500 clienti portati all’asta - +200 case aggiudicate, per un valore totale di 15 milioni Contattaci subito per parlare con uno dei nostri consulenti che ti aiuterà a trovare la tua casa all’asta senza correre rischi.
3
ID ANNUNCIO:
214576
CATEGORIA:
Appartamenti
TI POTREBBE INTERESSARE ANCHE
2
Appartamento a Roma Via Cavalier d'Arpino, 30
m²
:
135
camere
:
5
€ 0
Vedi Annuncio